SAINT-LAURENT-DU-VAR / SECTEUR ARNAULT TZANCK
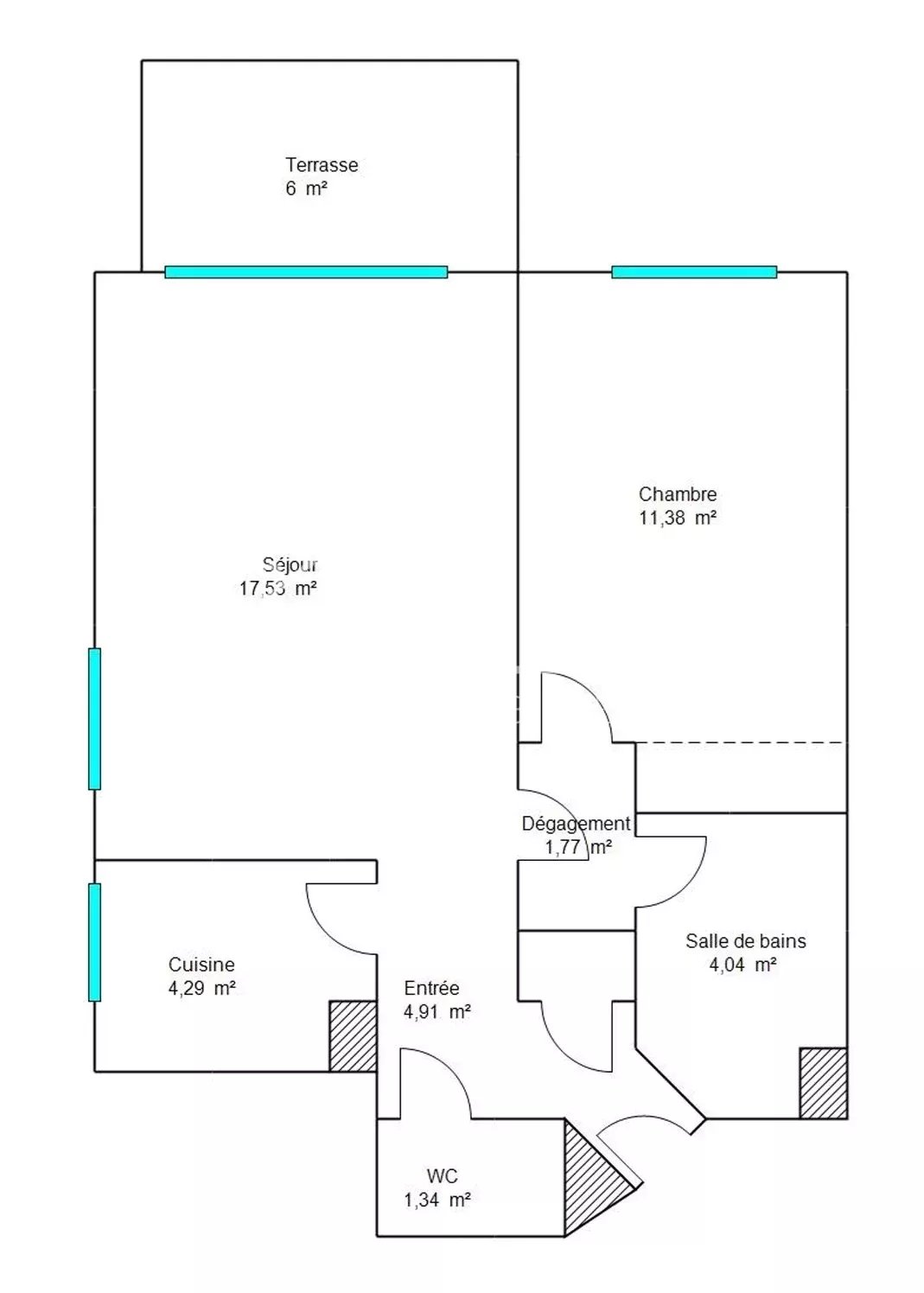
Situé dans une petite rue en retrait, au calme absolu, au sein d’une belle résidence sécurisée de 1990, cet agréable 2 pièces de 45 m² se trouve au 1er étage avec ascenseur.
L’appartement s’ouvre sur une belle terrasse de 8 m² bénéficiant d’une vue mer, idéale pour profiter d’un cadre de vie paisible et lumineux.
Il se compose d’une entrée, d’un séjour lumineux de 17M², d’une cuisine indépendante entièrement équipée, d’une chambre, d’une salle de bains et de WC indépendants.
L’appartement est lumineux, au calme, et offre un cadre de vie recherché à proximité des commodités et des axes principaux.
Une place de stationnement ainsi qu’une cave complètent ce bien.
📌 Copropriété de 23 lots
📌 Classe énergie : C











